Welcome back Folks,
Here is another interesting design conflict which detailers must pay closer attention to, while modelling and detailing. See the drawings below:


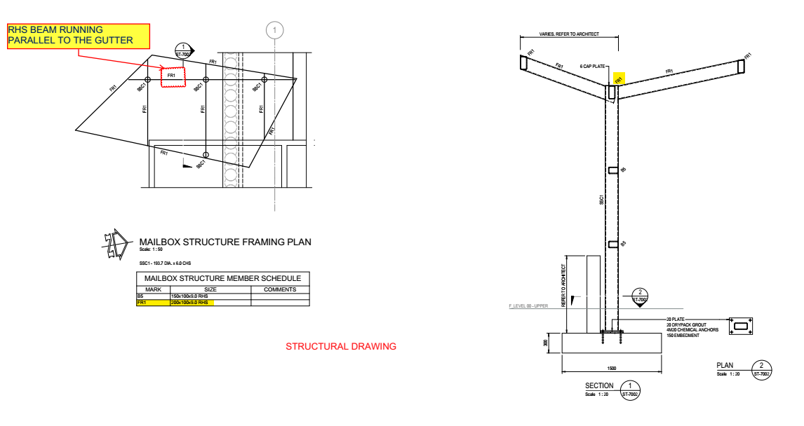
In the Architectural & Structural design, do you find anything suspicious? Specifically, the gutter location? Generally, when it comes to detailing commercial buildings you have to pay close attention to gutters. Though they do not come under the scope of the steel detailer, the location, slope and size of the gutter could potentially affect the steel members.
Here, is an example of how the gutter location affects the structure. In this canopy, the gutters sump and downpipe are located over a steel beam. (Refer attached Architectural drawing). The structural engineer did not consider the gutter when designing the steel members. The beam is running parallel to the gutter with a clearance of only 20 mm, which is not sufficient for fixing the downpipe. (Refer Structural drawing).
RFI & Revision (for gutter location)
We noted this problem and had raised an RFI (Request For Information) mentioning the clash and erection conflicts of the gutter, sump and downpipe. In response to the RFI, the client revised the design to relocate the gutter. This change saved the client a lot of potential costs. Thus when detailing the steel members one has to consider the gutter, also the nearby connecting members. (Refer below Revised Arch & Structural Drawings)

