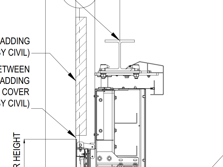
In this blog, I’d like to share an issue we faced while detailing Platform Screen Door (PSD) support beams in a metro station project.
Our scope was to provide structural beams to support the platform screen doors. The design also required stiffeners in these beams for structural strength.

The Issue We Identified
Before placing the stiffeners as per the design, we reviewed how the door frames would connect to the beams. During this check, we realized that the stiffeners could clash with the door frame supports.
As expected, when we reviewed the door frame support details, the clash became clear.

We raised this issue with the relevant team, and they advised us to modify the stiffener size so it would not interfere with the door frame supports.

As detailers, we shouldn’t just place elements exactly as shown in the design. We must also think about how other components will connect and function.
This is especially important when our steel supports secondary steel, equipment, or framing systems. A little extra attention during detailing can prevent major issues during installation.

Leave a Reply